Basic Line WC D/H Cap

02

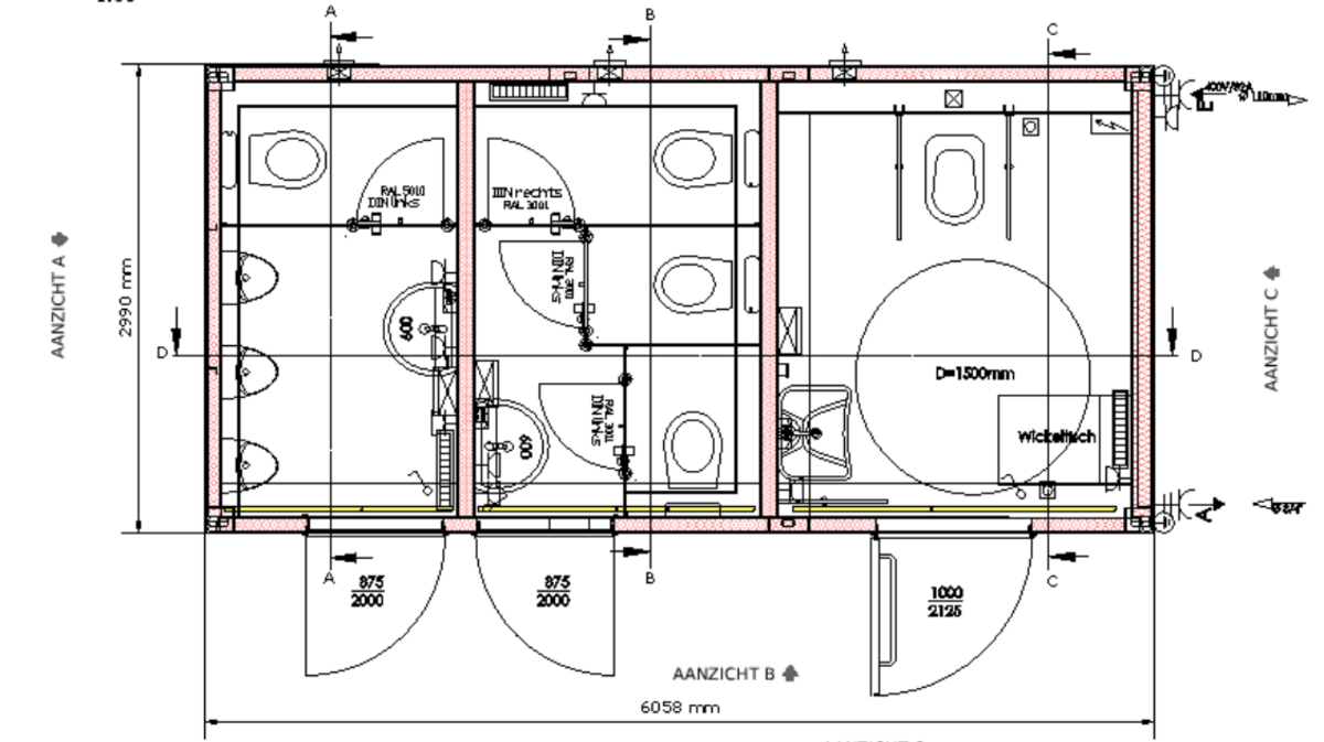
Basic Line WC Container D/H/Cap - Eén container voor allen

  • 1 toilet, toegankelijk voor mensen met een beperking
  • 4 toiletten
  • 3 urinoirs
  • 3 wastafels
  • 1 luiertafel
Product omschrijving
Onze diensten
  • Wij luisteren naar jouw wensen Dixi. Wij adviseren
  • Wij leveren
  • Wij maken schoon
  • Wij beschikken over
  • WIJ HALEN OP

Product omschrijving

Basic Line WC Container D/H/Cap - Eén container voor allen

Eén voor allen: dames en heren met en zonder individuele beperkingen en ouders met baby's vinden in de Basic Line WC Container D/H/Cap wat ze nodig hebben. Als verantwoordelijke voor evenementen, maar ook voor in steden, aan scholen, zorginstellingen... voldoet u met deze oplossing aan alle eisen. En dat met een optimale prijs-prestatieverhouding.

De Basic Line WC Container D/H/Cap heeft een oprijplaat die rolstoelgebruikers en ouders met kinderwagens gemakkelijk toegang geeft.

Het interieurontwerp voldoet aan speciale eisen, biedt voorzieningen voor mensen met een handicap, alsook een luiertafel voor de allerkleinsten. Alle compartimenten zijn ook voorzien van waterbesparende voorzieningen. Dit beschermt het milieu en uw budget.

Aandachtspunten

  • Afvalwatertank 5 - 10 m³
  • Watertank
  • Aanvul en ledigingsdiensten
  • Lengte: 6.058 mm
  • Breedte: 2.990 mm
  • hoogte: 2.840 mm
  • Stroomsterkte: 400 V / 32 A
  • Vers water: 3/4 GEKA-koppeling
  • Afvalwater: HT-pijp NW 100
* Onder voorbehoud van technische wijzigingen
  • Dames:
  • 3 toiletten
  • 1 wastafel
  • 1 verwarming
  • Heren:
  • 1 toilet
  • 3 urinoirs
  • 1 wastafel
  • 1 verwarming
  • Cap:
  • 1 toilet, toegankelijk voor mensen met een beperking
  • Noodoproep
  • 1 wastafel
  • 1 verwarming
  • Luiertafel
* Interieur kan variëren

Hoe het werkt

Informatie over het bestelproces en onze producten

ADVIES EN PLANNING

Hebt u vragen over onze diensten of onze producten? Onze ervaren TOI TOI & DIXI-experts zullen uw behoeften analyseren, de juiste oplossing uitwerken en, indien u dat wenst, de volledige projectcoördinatie beheren, met inbegrip van werfinspecties bij de betrokken autoriteiten en het verkrijgen van alle vergunningen. Neem contact met ons op, wij zullen u graag adviseren over alle vragen met betrekking tot:

  • behoefteplanning
  • geleidingssystemen
  • levering en ophaling
  • officiële vergunningen

WIJ LEVEREN EN HALEN OP

Wij leveren onze containers op de gewenste locatie, plaatsen ze daar volgens de eisen en halen ze ook weer op. Samen met onze logistieke partners zorgen wij voor een betrouwbare service.

MONTAGE- EN VERBINDINGSWERKZAAMHEDEN

Totale service voor uw project: TOI TOI & DIXI zorgt voor alle noodzakelijke werkzaamheden, afhankelijk van uw behoeften - van professionele montage tot aansluitingswerkzaamheden voor water, riolering en elektriciteit tot demontage. Indien nodig nemen wij ook de onderconstructie van de containers over, bieden wij reparatiediensten aan en nemen wij maatregelen voor de uitbreiding, verbouwing of binneninrichting van de containers.

SCHOONMAKEN

Geteste hygiëne & desinfectie: Onze containers worden voor en na gebruik hygiënisch gedesinfecteerd en getest. Ons opgeleid gespecialiseerd personeel voert deze reinigingen uit volgens vastgelegde specificaties. Wij bieden u de service die u ter plaatse nodig heeft.

Uw gebruiksbehoeftes

Onze oplossingen voor uw behoeftes

zie ons serviceaanbod

TOI TOI & DIXI product wereld

Hoe kunnen we u helpen?

Vragen en antwoorden over onze producten, diensten en online verhuur

ALGEMENE VRAGEN

VRAGEN OVER PRODUCTEN

Bel ons 02 - 377 12 88 Offerte Uw Offerte Vestigingen Onze vestigingen